Het project situeert zich in het
Gasthuis in Mechelen, een voormalig
ziekenhuis dat momenteel dienst
doet als tijdelijke locatie waar diverse
creatievelingen atelierruimtes kunnen
huren.
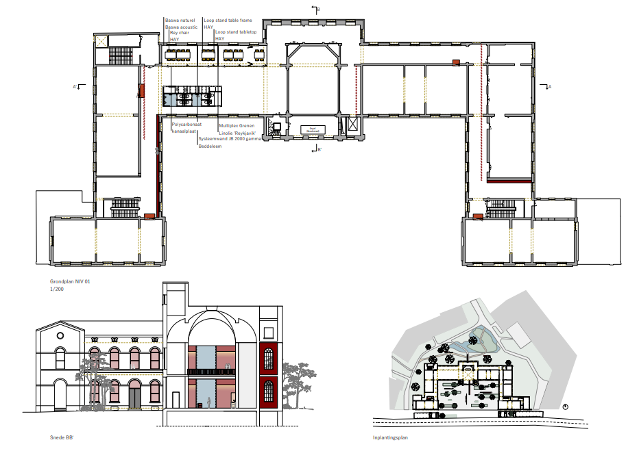
De opdracht, genaamd in
between, draaide om het ontwerpen
van de tussenruimtes, zoals gangen,
de collectieve ruimte en het voorplein
van deze locatie.

Het tijdelijke karakter
stond centraal in dit project, wat ons
ertoe bracht als uitgangspunt gebeitste
multiplexplaten te gebruiken en deze
te verwerken in standaardafmetingen.
Voor de collectieve ruimte en gangen
lieten we ons inspireren door de reeds
aanwezige kenmerken, die we verder
wilden benadrukken en versterken.

Door het gebruik van kleur en vorm
hebben we getracht de principes van
circulariteit te onderstrepen.
Bij binnenkomst worden bezoekers
geleid naar het centrale supermeubel,
waarin meerdere functies zijn
samengebracht, zoals sanitaire
voorzieningen en informele werkruimtes.
Ook de keuken en een lange tafel maken deel uit van deze ruimte.
Door een verticale bewegingslijn ontstaat een natuurlijke doorstroming naar de ateliers.
Op de bovenverdieping herhaalt het supermeubel zich, waar tevens vergaderruimtes zijn voorzien.


Dit project werd uitgevoerd als groepswerk in samenwerking met Lize De Winter.




